Zum Inhalt springen
Christian´s Karmann-Ghia Seite

Christian´s Karmann-Ghia Seite

Kaufberatung, Historie, Restaurierung, Technischen Daten, Fakten, Repatatur-Leitfaden

  • Meiner
  • Historie
  • Kaufberatung
  • Galerie
    • Friedhof
    • Besser nicht
    • Dannhauser
    • Rometsch 56
    • Rometsch 58
    • Buggy
    • Baja
    • Hebmüller
  • Daten
    • Fahrgestellnummern
    • Neupreise
    • produzierte Karmann-Ghia´s
    • Motorkennbuchstaben
    • Ausstattungen
    • Farbkombinationen
    • Modelländerungen
    • Schaltpläne
    • technische Daten
  • Literatur
    • Betriebsanleitungen
    • Pressefotos
    • Rückfahrscheinwerfer
    • Bosch Testwerte
    • Bosch Entstöranleitung
    • Sonstige
    • Quartett
    • Bücher
    • Undichtigkeiten am Verdeck
  • Prospekte
  • Forum
  • Impressum

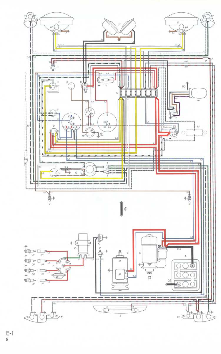
Kategorie: Schaltpläne

In Daten, Schaltpläne

Schaltpläne

8-60-1
8-60-2
8_65usa_2
8-64_2
8_65usa_1
8-64_1
8-65-
57b
8-65-2
57
8-70-
61-66
67-69
70-71
66
72
8-69
ab8-1966USA_2
ab8-1966USA_1
typ348-66_2
typ348-69
US_ab_08_71
typ348-66_1
US_ab_8_69

1 2 ►
Hier zum Download als PDF

1957
61-66
USA ab 8-65
ab 8-60
ab 8-64
ab 8-65
USA ab 8-66
1966
67-69
ab 8-69
USA ab 8-69
ab 8-70
USA ab 8-70
USA ab 8-71
70-71
1972
Typ34 8-66
Typ34 8-69

 

Stolz präsentiert von WordPress | Theme: BusiCare Dark von SpiceThemes